
04.
HealthCare
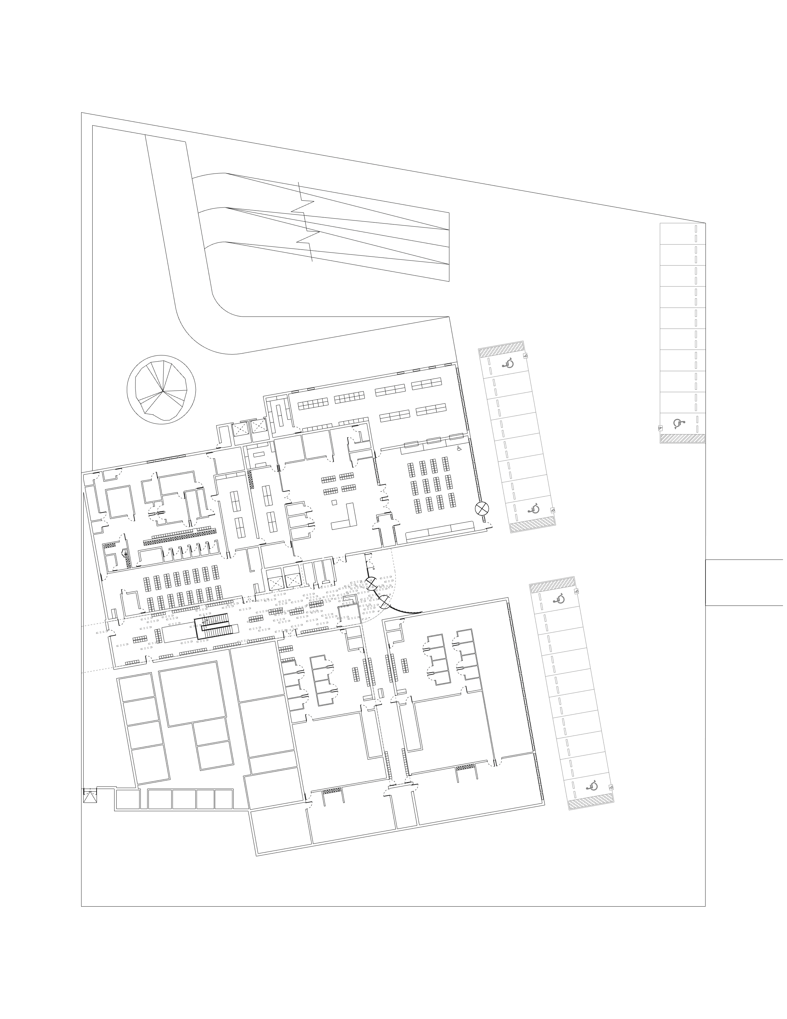
HealthCare Center
900 West Wayman St, Chicago, IL, 60607
Goal: The goal of this project is to design the healthcare building, which contains the women's imaging, family/internal medicine practice.
Challenge: The challenge of the project was research of pricing, concept, required programs
Site: 900 W Wayman St, Chicago, IL, 60607
Challenge: The challenge of the project was research of pricing, concept, required programs
Site: 900 W Wayman St, Chicago, IL, 60607
Site Analysis

View from North
Sun-Temperature Study
The concept
“HOPE”
What is the reason why people visite the hospital? This is my first question before diving into the project. And having the interview to people, the workers and visitors to the hospital, I found my own answer;
“For the cure, for the hope.”
The other challenge is to show the hope in the architecture, so I choose the way the natural lights came from the ceiling, thinking about the moment that Ernest Hemingway novel, The Old Man and the Sea, when the old man awakes from the struggle before night, feeling the moment of sunlight hits his face.
Process
-Interview

Interview with Worker and Paitents
Mass Study

Final Design
